REQUEST A TOUR If you would like to see this home without being there in person, select the "Virtual Tour" option and your agent will contact you to discuss available opportunities.
In-PersonVirtual Tour

Listed by Chuhui Huang • Re/Max Premier Prop Arcadia
$299,000
Est. payment /mo
5,593 SqFt
UPDATED:
Key Details
Property Type Vacant Land
Sub Type Unimproved Land
Listing Status Active
Purchase Type For Sale
Square Footage 5,593 sqft
Price per Sqft $53
MLS Listing ID CRAR25143814
HOA Y/N No
Lot Size 5,593 Sqft
Property Sub-Type Unimproved Land
Source Datashare California Regional
Property Description
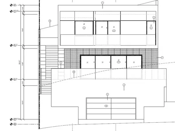
Perfect opportunity for a developer or owner-user to build in one of the most scenic hillside communities. Located in the desirable Highland Park area near Eagle Rock, this lot offers breathtaking panoramic views stretching from Downtown Los Angeles to Palos Verdes. Design a custom driveway leading to your view home and enjoy the serenity, privacy, and inspiration of hillside living. The seller has a conceptual drawing available for review featuring a 3-bedroom, 3.5-bathroom home with a study room, an attached 2-car garage, and approximately 1,800 square feet of living space. Please note, the plans have not yet been submitted to or approved by the City of Los Angeles. The adjacent lot is also available for sale (MLS# AR25143806), offering added potential and flexibility for future development. This is an exceptional opportunity to build with scale, privacy, and unmatched views.
Location
State CA
County Los Angeles
Interior
Fireplace No
Exterior
View Mountain(s), Other
Building
Lot Description Sloped Up
Read Less Info

© 2025 BEAR, CCAR, bridgeMLS. This information is deemed reliable but not verified or guaranteed. This information is being provided by the Bay East MLS or Contra Costa MLS or bridgeMLS. The listings presented here may or may not be listed by the Broker/Agent operating this website.
GET MORE INFORMATION




